STI
Search
menu

Joint Systems for Fluted Deck Floors

Figure 1

Fire-rated construction joints between rated floors and rated walls (Floor-to-Wall) and joints between two rated floors (Floor-to-Floor) are common applications on commercial construction projects. At STI we have numerous product options that can address various joint widths and hourly ratings for these applications. When searching Floor-to-Floor and Floor-to-Wall joints on The System Search & Submittal Builder on the website you will see the choices shown in Figure 1.

You may notice that concrete over metal deck is not one of the barrier options on the System Search. We often are asked why we don’t have systems that utilize concrete over metal decking when it is a common construction method or do I just use the system without the decking? The answer is YES all of our Floor-to-Floor and Floor-to-Wall systems may be utilized on concrete floor over metal decking as long as certain criteria is met. You may be asking how we can do that when the UL System itself does not specifically reference the metal decking. The UL XHBN Guide Information on Joints Systems addresses this condition specifically.

The UL Guide Information states the following: “Floor-to-floor and floor-to-wall joint systems that specify installation in concrete floors may include installation in floors consisting of fluted or corrugated steel deck topped with structural concrete, provided that (1) the concrete topping thickness measured above the top plane of the steel deck is equal to or greater than the minimum

Figure 2

concrete thickness specified in the joint system, and (2) the joint system does not require any portion of the forming material or fill material to extend below the bottom plane of the floor.”

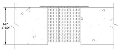
So for example in UL System FF-D-1007 the call out for the floor is as follows:

1. Floor Assembly – Min 4-1/2 in. (114 mm) thick reinforced lightweight or normal weight (100-150 pcf or 1600-2400 kg/m3) structural concrete.

The detail drawing in that system is shown as Figure 2.

Figure 3

By applying the UL Guideline information I am able to use this system for a 4-1/2” thick concrete floor over metal deck as shown in Figure 3 because the thickness of the concrete above the flutes is minimum 4-1/2” thick and none of the forming material extends below that surface. The content in the UL Guide information is very helpful in allowing for versatility of these types of Joint systems to cover the various conditions that exist on different projects and construction types.

Download PDF of article