STI
Search
menu

Firestopping and the No-Fly Zone for Penetrations

A no-fly zone is an exclusion zone where aircraft are not permitted to fly, sometimes at the peril of being shot down. In the context of firestopping, we often see specifications create an exclusion zone at the top-of-wall to prevent penetrants from being installed in close proximity to the head-of-wall joint. Colloquially, this exclusion zone has been called a “no-fly zone” and it makes a lot of sense to “shoot down” penetrants near the top-of-wall.

Penetrants installed at or near the top-of-wall can interfere with proper movement of the joint system. Some head-of-wall joint systems have ceiling track systems designed to allow for deflection, and a rigid penetrating item can inhibit free movement. Additionally, the fire test standard for head-of-wall joint systems imposes specific temperature limitations on the unexposed (non-fire side) of the test assembly. Penetrants can conduct heat and may cause temperatures to exceed test standard limitations.

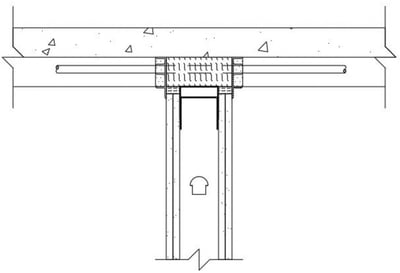
Figure 1

While there may be a handful of UL Systems, such as HW-D-0043 (Figure 1), that address penetrations in the head-of-wall joint, in general, such penetrations are best avoided, and instituting a no-fly zone, such as explicitly restricting penetrations within 6 inches (152 mm) of the head-of-wall joint, can be a good construction practice. It is important to note that nothing in the building code (e.g. International Building Code® or Life Safety Code®) precludes penetrations in these areas. This is something that should be discussed during project coordination meetings or addressed up front in specifications, but it can go a long way to making the process of firestopping a little less complicated on your next construction project.

 

 

 

Download PDF of Article Here