STI
Search
menu

Defining Annular Space in a UL System

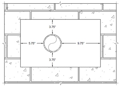
Figure 1

When comparing a field condition to a UL Tested system there are many factors that must be evaluated to ensure that the proper solution is selected. One of those factors is the minimum and maximum annular space that the UL System allows for. The topic of annular space is not something new, especially to those that have been in the business for some time. When dealing with a circular opening determining annular space is really straight forward. It is measured from the penetrant to the edge of the opening in any direction. Dealing with larger rectangular shaped openings often times causes confusion. One of the more common inquiries the Engineering Services Team receives is how to determine annular space when penetrants are passing through a rectangular opening. Is the annular space measured from the penetrant to any point around the opening? Do I measure from the corner to the penetrant? This condition can be really confusing and often times is left open to interpretation. Fortunately, UL has clarified the condition under the Category XHEZ Guide Information for Through-Penetration Firestop Systems. The UL Guide Information for Through-Penetration Firestop Systems states the following:

Figure 2

“The minimum and/or maximum annular space referenced in the firestop system must be maintained in order to achieve the hourly rating of the system. The annular space of a penetrating item through a rectangular opening is determined by measuring the distance from the closest point of the penetrating item to a point perpendicular to each of the four sides of the opening. The diagonal dimension is not intended to represent the annular space of a rectangular opening. The annular space between multiple penetrating items within a rectangular opening is determined by measuring the closest point of one penetrating item to the closest point of the adjacent penetrating item.”

Figure 1 shows us a simple view of the measuring points for a penetrating item passing through a rectangular opening. In this condition you will see the perpendicular direction on which the measurements should be taken in relation to the four sides of the opening.

The UL Guide Information specifically states the diagonal dimension is not intended to represent the annular space. The importance of this distinction is the diagonal distance will typically always be greater and could create the perception that a penetration is not in compliance with the UL criteria. In the same condition you can see the measured distance is much greater when taken in the diagonal direction as illustrated in Figure 2.

Figure 3

The second part of UL Guide Information regarding annular space in rectangular openings is how to correctly measure annular space between multiple penetrating items. Figure 3 shows a simple diagram on the proper way to measure between adjacent penetrants.

Understanding the intent and proper way to measure annular space in rectangular openings can eliminate confusion and misconception and allow for the proper and economical selection of UL Systems to address all the parameters of the application. Please contact STI’s Engineering Services if you have any questions.